Wir bieten Metall-, Fassaden und Glasbauern, sowie Architekten und Bauherrn
Unterstützung, als spezialisiertes Fachbüro, von der Entwurfsphase
einer Glaskonstruktion über die Genehmigungs- und Ausführungsplanung
bis hin zur Begleitung und Überwachung der Bauausführung.
Fachplanung für den Metallbau
- Glasfassaden in Aluminium, Stahl und Holz
- Wintergärten, Schwimmbadüberdachungen
- Vordächern
- Fenster, Türen, Eingangsanlagen, Windfanganlagen,
Balkonanlagen, automatische Türanlagen - Pyramiden, Satteldächern, Pultdächern, Polygondächern,
Walmdächern, Tonnendächern und Kuppeln - Sonderkonstruktionen aus Glas
- Blech-Keramik,-Eternitfassaden
- Sonnenschutz
- Statische Vordimensionierungen
- Entwurfs-, Detail-, Werk-, und Einzelteilplanung, Stück-und Montagelisten
- 3D Konstruktionen
- Sonder-Objektprofilentwicklung
- Aufmaß vor Ort
Fachberatung
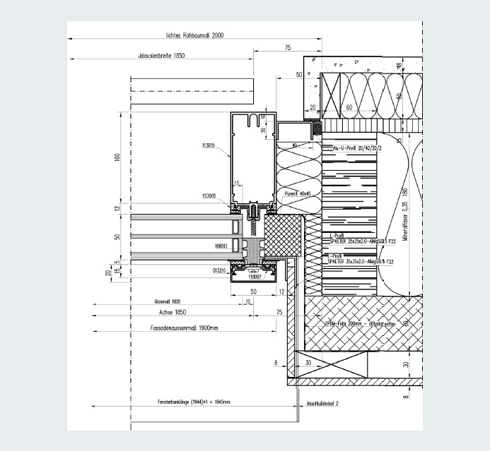
- Wärmeberechnungen für den fachgerechten Einbau von Fassaden,
Fenstern und Türen (Isothermen, Uf, Uw, f rsi, etc. Berechnungen ) - Unterstützung bei Fachthemen (Bauphysik, Brandschutz, NRWG,
techn. Richtlinien) - Zulassungen und Zertifi zierungen
- CE Kennzeichnung für Fassaden, Fenster und Türen
nach den gültigen Produktnormen - Projektberatung zur Ausführung, Fertigung und Montage
Fachbauleitung
- Koordination zur termingerechten Auftragsabwicklung
- Überwachung der fachgerechten Bauausführung
